Ein paar Hausbeispiele
Aktion Platzwunder
Bungalows
Family
City
Doppelhäuser
Standards
Menü
Aktion Platzwunder
Bungalows
Family
City
Doppelhäuser
Standards
X
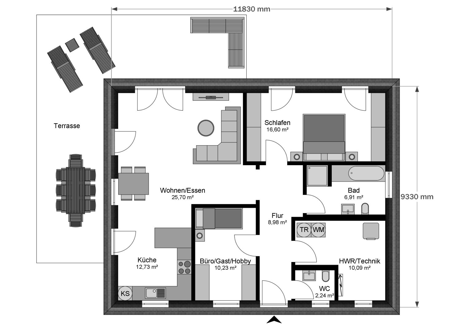
Bungalow 1
Normal
Konfigurator
Previous
Next
Loading...
3-4-normal
1-2-normal
EG