Ein paar Hausbeispiele
Aktion Platzwunder
Bungalows
Family
City
Doppelhäuser
Standards
Menü
Aktion Platzwunder
Bungalows
Family
City
Doppelhäuser
Standards
X
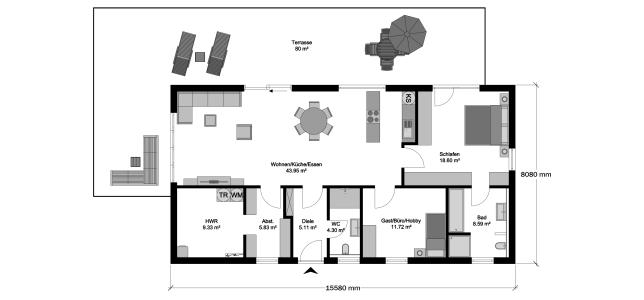
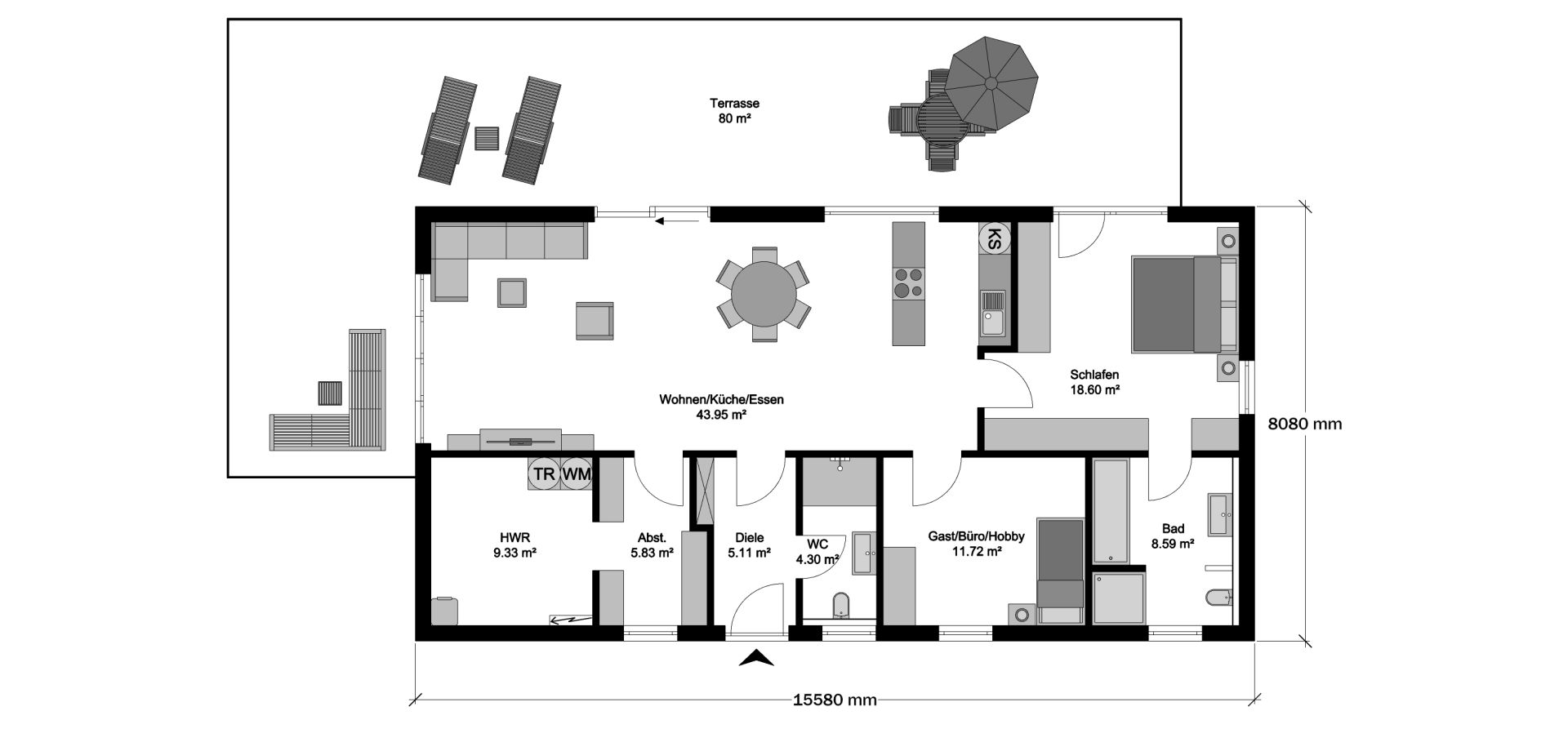
Bungalow 2
Normal
Konfigurator
Previous
Next
Loading...
2-3
3-4_CC
3-4_Evening
4-1
EG