Ein paar Hausbeispiele
MFH-Aktion 2025
Aktion Platzwunder
Family
Doppelhäuser
City
Standards
Luxvilla
Bungalows
Menü
MFH-Aktion 2025
Aktion Platzwunder
Family
Doppelhäuser
City
Standards
Luxvilla
Bungalows
X
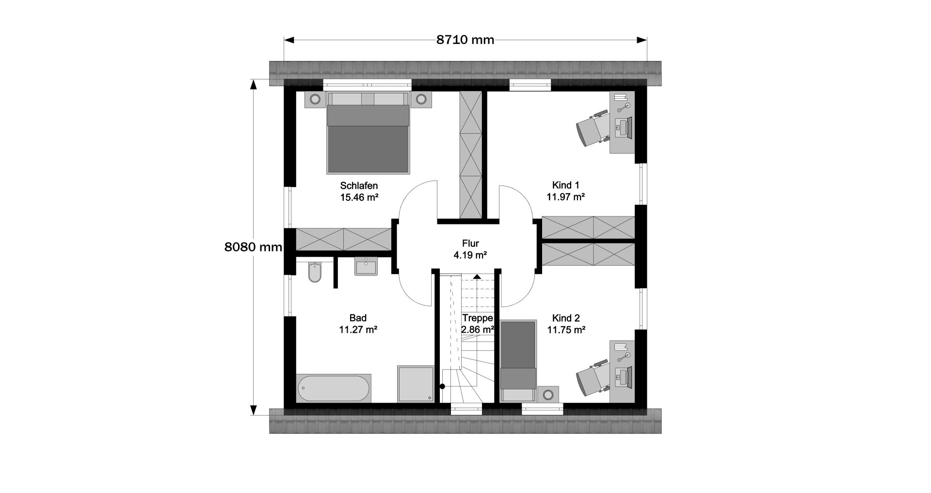
City M (808x871)
Normal
Konfigurator
1-2
3-4
EG
OG
City M (808x871)
Normal
Konfigurator