Ein paar Hausbeispiele
MFH-Aktion 2025
Aktion Platzwunder
Family
Doppelhäuser
City
Standards
Luxvilla
Bungalows
Menü
MFH-Aktion 2025
Aktion Platzwunder
Family
Doppelhäuser
City
Standards
Luxvilla
Bungalows
X
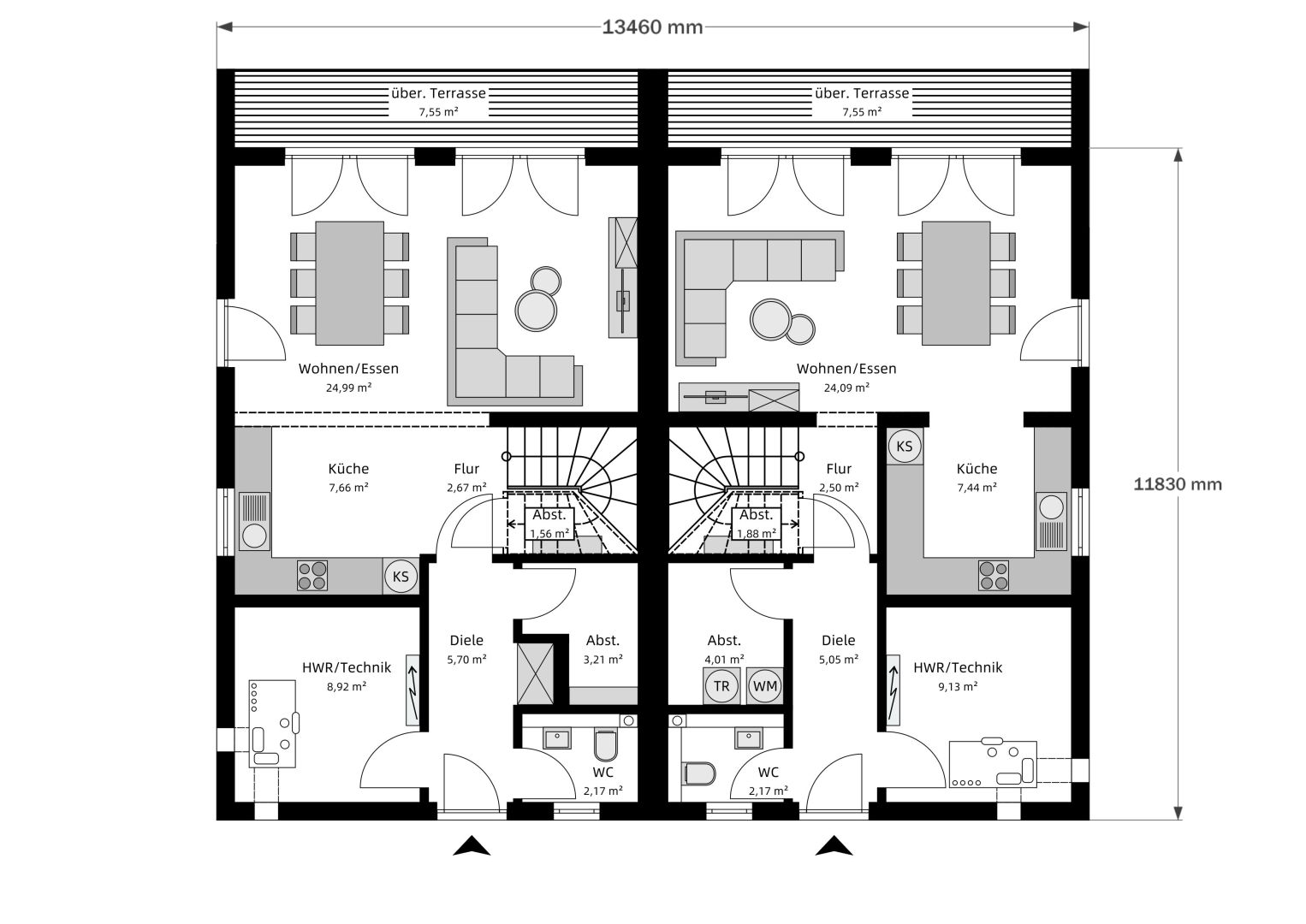
Doppelhaus 2
Normal
034n
112n
EG
OG
Doppelhaus 2
Normal