Ein paar Hausbeispiele
MFH-Aktion 2025
Aktion Platzwunder
Family
Doppelhäuser
City
Standards
Luxvilla
Bungalows
Menü
MFH-Aktion 2025
Aktion Platzwunder
Family
Doppelhäuser
City
Standards
Luxvilla
Bungalows
X
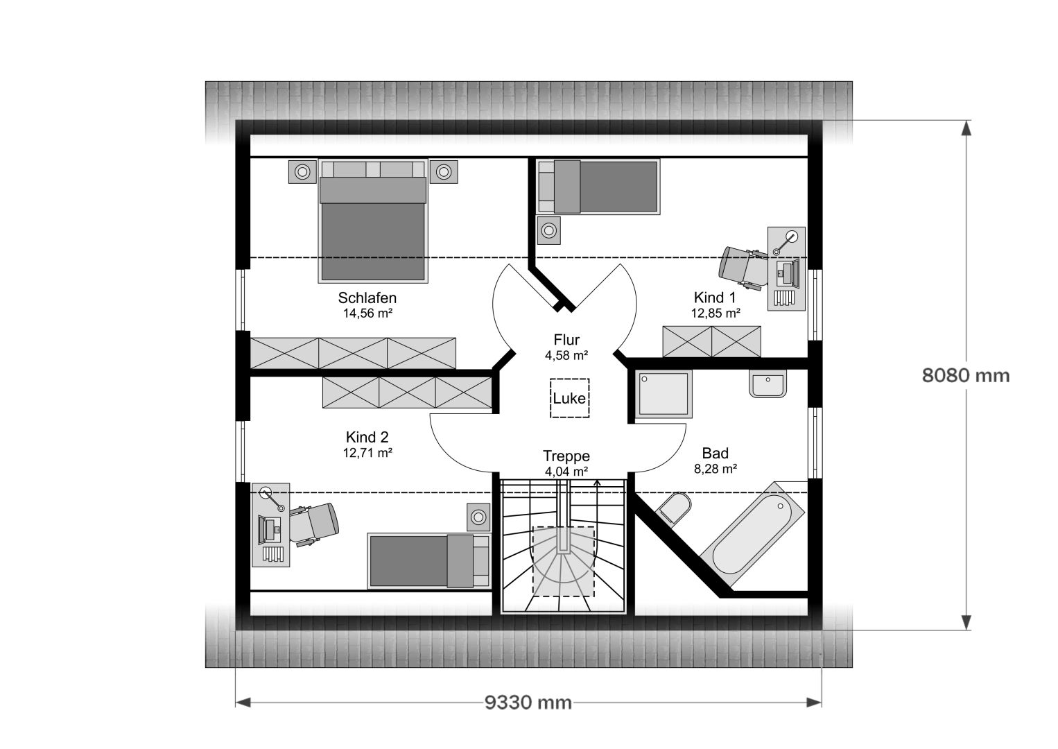
Family L (808x933)
Normal
360°
Konfigurator
7764.n01.p1322 - Family_L - Family_L-EG
7764.n01.p1322 - Family_L - Family_L-OG
3-4
1-2
EG
OG